-
Superficie
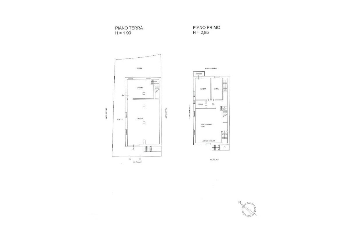
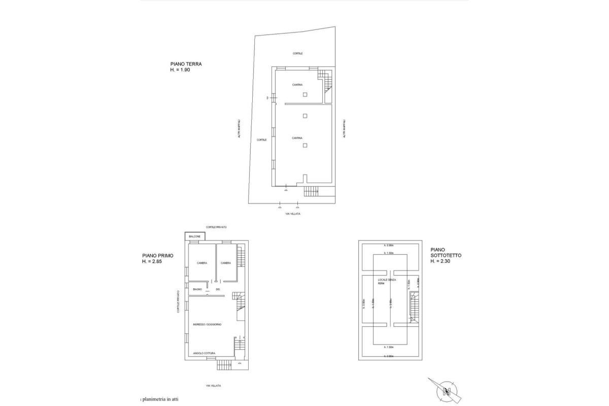
143 mq
-
Bagni
1
-
Camere
2
Descrizione
Binasco centro: in posizione molto tranquilla, proponiamo abitazione indipendente di tre locali, oltre diversi locali accessori al piano terreno e sottotetto, per un totale di 143 mq, che permettono di dare spazio/indipendenza ai vari componenti della famiglia.
L'abitazione, senza spese condominiali, libera su tre lati e con area cortiliva, si sviluppa principalmente tutta al primo livello; ha due ingressi indipendenti, uno che porta all'abitazione principale e l'altro, sul retro, che porta al locale cantina.
L'ingresso è nella zona giorno dove si dispiega l'ampio e luminoso soggiorno openspace, con cucina a vista, che è possibile personalizzare e arredare come più si preferisce; l'ambiente è illuminato da tre finestre, dotato di canna fumaria e il soffitto è impreziosito da una bellissima trave a vista.
Nella zona notte troviamo le due camere da letto e un bagno con doccia XL.
L'immobile è stato recentemente ristrutturato con i seguenti lavori di ripristino volti anche al risparmio energetico:
cappotto termico interno, facciata, serramenti in pvc con doppi vetri, persiane in legno scorrevoli a scomparsa, bagno, riscaldamento a pavimento, impianti elettrici e idraulici e pavimentazione nuova.
I locali accessori al piano terreno sono stati ripristinati creando vespaio e riscaldamento a pavimento; il box ha imboccatura ampia ma ha altezza di 190 cm.
Il cortile, che circonda l'immobile, sulla parte retrostante è più ampio e permette di essere arredato e goduto in ogni stagione.
E' l'immobile ideale per chi ama vivere nel centro di un paese ben servito e vivace, ancora ricco di attività commerciali e stazione dei bus, da raggiungere comodamente a piedi; è ben collegato con autobus per raggiungere Milano e Pavia o i comuni limitrofi; è l'ideale per chi ama avere uno spazio da vivere all'aperto, per chi ha amici a quattro zampe da far scorrazzare liberamente.
La descrizione è puramente indicativa e non valida ai fini contrattuali.
La nostra realtà sta crescendo: stiamo selezionando nuovi collaboratori e agenti immobiliari. Se vuoi cogliere questa opportunità, contattaci per saperne di più!






























