-
Superficie
120 mq
-
Bagni
2
-
Camere
2
Descrizione
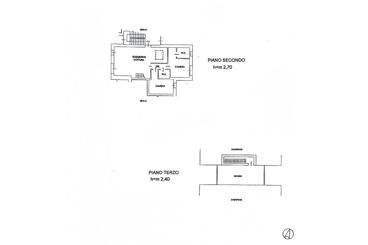
Proponiamo in Bornasco bellissimo appartamento di tre locali con terrazzo, posto al secondo e ultimo piano in condominio del 2010.
L’ingresso è nell’ampio soggiorno con cucina a vista che si presenta molto arioso e luminoso grazie alle due portefinestre con affaccio sul verde; sempre nel soggiorno, attualmente, nella parte adiacente il disimpegno della zona notte, si trova un locale hobby soppalcato.
Nel disimpegno della zona notte troviamo:
la camera matrimoniale, di forma rettangolare, con bagno privato e doccia XL; la seconda camera, di buone dimensioni, entrambe con portafinestra.
il secondo bagno con doccia.
Dalla scala del soggiorno è possibile accedere al bel
terrazzo che gode di molta privacy e consente di essere arredato come più si
preferisce per passare bellissimi momenti all’aria aperta.
L’appartamento, in classe energetica B, ha riscaldamento a
pavimento ed è accessoriato di:
allarme (predisposto anche pere il box), caldaia nuova, condizionatori con pompa di calore, zanzariere, barbecue, videocitofono a colori.
Completa la soluzione il box di 20 mq.
E’ l’immobile ideale per chi ama avere un comodo spazio esterno da vivere in sicurezza e tranquillità, per chi ama gli ambienti openspace, luminosi, da arredare a piacimento, per chi ama vivere in un luogo tranquillo ma a pochi minuti da attività commerciali e grandi magazzini.
Bornasco si trova a pochi chilometri da Siziano e dalla stazione ferroviaria di Villamaggiore con passante ferroviario S13 con direzione Milano/Pavia. Fermata bus Milano/Pavia 300 metri.
La descrizione è puramente indicativa e non valida ai fini
contrattuali.






























