-
Superficie
200 mq
-
Bagni
1
-
Camere
3
Descrizione
In Vellezzo Bellini, proponiamo bellissima e unica soluzione
di villa singola con ampio giardino.
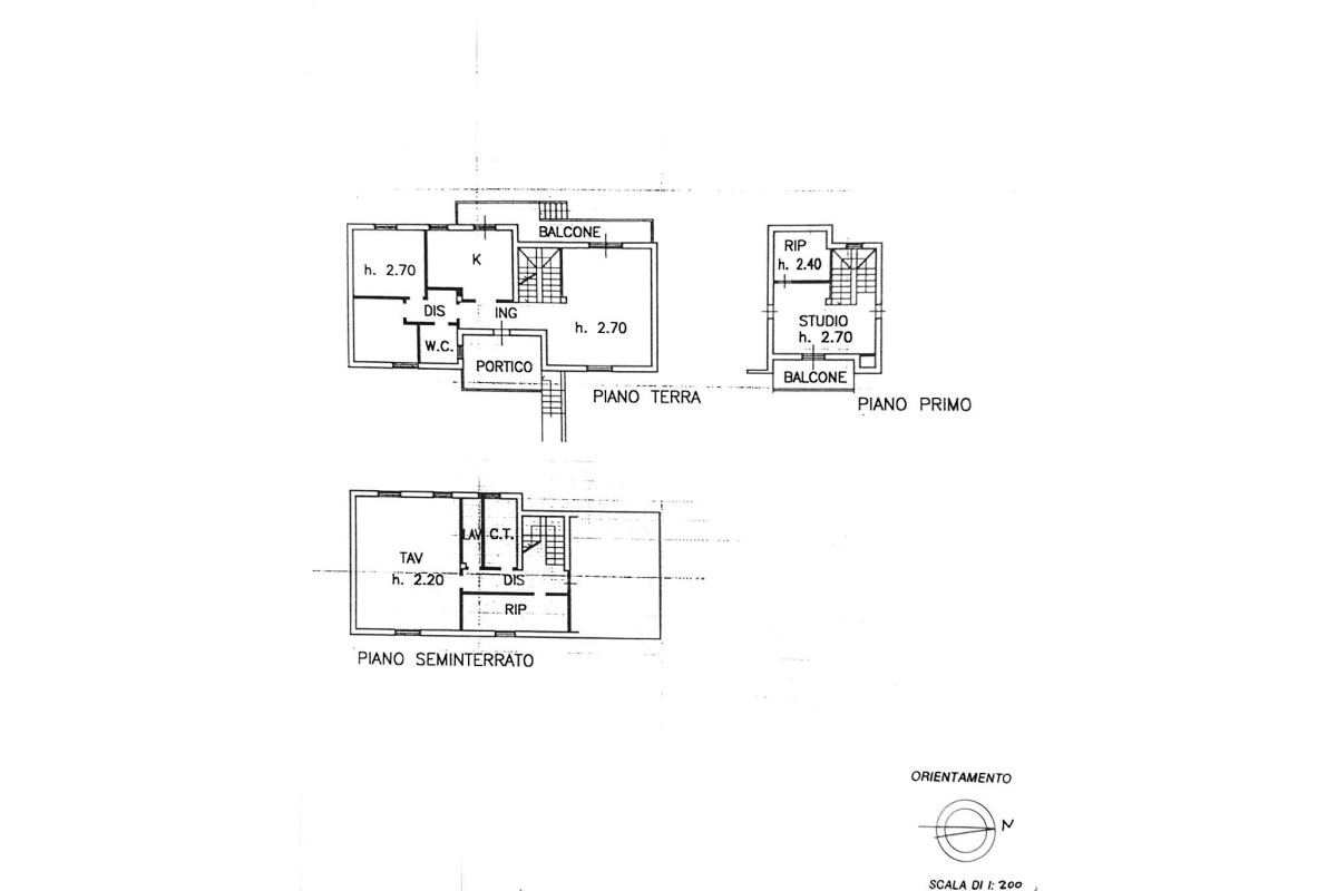
L’immobile, finito di costruire nel 1999, si presenta come
abitazione di tre locali di circa 120 mq, su un solo livello, oltre ad ampio locale openspace al piano superiore e a diversi locali accessori, nel piano seminterrato, che la rendono davvero interessante.
Si accede alla proprietà dal cancello pedonale o dall’ampio
carraio che conduce all'autorimessa;
qualche gradino porta al grande portico di 12 mq., che
permette di essere arredato, e introduce nel disimpegno dell’abitazione che è
così disposta:
ampio e luminoso soggiorno, di circa 30 mq, con finestra e
doppia portafinestra che permette di accedere al giardino; le sue dimensioni
permettono di arredarlo a piacimento e di creare più zone di convivialità/relax;
grande cucina (17 mq ca.), sogno di ogni padrona di casa,
che permette di essere riccamente arredata, con qualsiasi tipo di disposizione,
anche con un’isola al centro, volendo;
camera matrimoniale e camera singola (attualmente adibita a
studio);
bagno con doccia.
Al piano superiore troviamo un bellissimo e grande locale
openspace di circa 40 mq. con terrazzino di 8 mq circa.
Al piano seminterrato troviamo i locali accessori per un
totale di 86 mq.: cantina, lavanderia, sgabuzzino, autorimessa.
L’autorimessa, di 34 mq, ha la serranda motorizzata e
permette l’accesso all’abitazione.
Il giardino, che si dispiega sui quattro lati dell’immobile,
è in parte piantumato e in parte piastrellato e potrebbe ospitare anche di una bella piscina, ha irrigazione automatica e permette di essere
arredato e goduto in ogni stagione.
L’immobile si presenta in buone condizioni è in classe
energetica E, ed ha i seguenti accessori:
caldaia a condensazione; impianto di riscaldamento a zone
(separato per ogni livello); aria condizionata con pompe di calore; infissi con
doppi vetri; zanzariere; generatore di corrente; antifurto perimetrale e
volumetrico; inferriate al piano terreno; 2 canne fumarie; videocitofono;
impianto di irrigazione e illuminazione esterna; tende parasole; camino
canalizzabile con forno...
E’ l’immobile ideale per chi desidera vivere con totale privacy e tranquillità, per chi ama essere totalmente indipendente; per chi vuole unire abitazione e attività lavorativa; per chi vuole avere un’abitazione su un solo livello ma con un’ampia metratura e con la possibilità di avere altri locali accessori che permettono di riporre attrezzature lavorative/materiale professionale o di coltivare i più disparati hobbies; per chi ama condividere la sua vita con amici a 4 zampe lasciandoli liberi di scorrazzare nella proprietà.
Vellezzo Bellini si trova a soli 10 minuti dal casello autostradale di Bereguardo e a 13 minuti dal quello di Binasco e a 25 minuti da Milano Sud.
Il Comune di Vellezzo Bellini, è servito da diverse attività commerciali (farmacia, market, alimentari vari, bar, tabacchi, ristoranti/pizzerie, parrucchieri, estetica) e permette di praticare le più disparate attività sportive/ricreative.
La descrizione è puramente indicativa e non valida ai fini contrattuali.



































